AUTOCAD中多线的设置:[5]非等距离多线的绘制
非等距离多线的绘制在现实生活还是经常用的,怎么操作呢?
操作方法
- 01
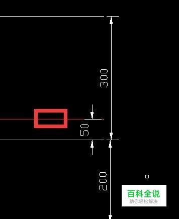
如图所示我们要绘制距离为300和200的三条直线的多线怎么绘制。
- 02
我们绘制一个中线分析一下。如图所示,其实是将中线下移50就可以了。也就将线下移0.1单位。
- 03
我们在命令行中输入MLSTYLE命令。空格。
- 04
点击新建按钮。新建一个样式。
- 05
这个时候我们添加一直线将中线偏移-0.1
- 06
在命令行中输入ML再空格S,将比例修改成500
- 07
这个时候大家会发现我们可以轻松绘制这样的不等距离多线。
赞 (0)
