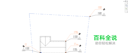
revit项目基点和测量点
使用以下策略优化项目基点和测量点的使用。包含基于测量点(黑色)和项目基点(橙色)的高程点坐标。
检查模型与内部原点的距离
- 01
选择项目基点并取消剪裁。
- 02
在项目基点上单击鼠标右键,然后单击移动到启动位置。
- 03
如果该距离超出最大值,请将模型几何图形移动到距项目基点启动位置 32 千米或 20 英里的范围内。
定位导入的 DWG 场地
- 01
工程师提供的 DWG 文件包含模型的场地信息,请执行以下操作以确保 DWG 文件正确放置。
- 02
使用旋转正北以指定相对于模型的正确角度。
- 03
链接 DWG 文件时,为“定位”,指定“自动 - 通过共享坐标”。
赞 (0)
