CAD如何输入上下标
载输入某些公式时,常常要用到上下标,那么在cad中怎样才能输入上下标呢,现在就为大家简单介绍一下
操作方法
- 01
首先在命令栏输入【MT】命令,选择输入文字的位置
- 02
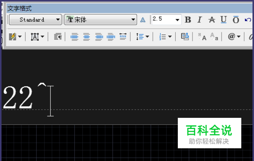
先介绍一下如何输入上标,例如想要输入2的平方,输入数字【22^】, 一定要记得加上符号【^】
- 03
然后选中【2^】
- 04
点击文字格式对话框上的【堆叠】按钮
- 05
就实现了上标
- 06
下标和上标的方法相似,就是在下标前加【^】 例如A1,输入【A^1】
- 07
选中【^1】
- 08
点击【堆叠】,就得到下标了
赞 (0)
