天正建筑如何画轴线
天正建筑是基于CAD的强大的建筑绘图软件,很多操作可以仿照CAD的思路,以及PKPM的操作思路,但是对于初次使用它的人来说,还是会有不少疑问的,比如这里怎样画轴线。
操作方法
- 01
由于初次使用,会不是很习惯,因此操作起来有不少疑问,我这里先使用CAD绘制建筑图,然后再使用天正根据需要绘制需要的轴线,然后去生成墙线等建筑平面图操作。点击“平面轴线”。
- 02
这里主要有两种轴网“直线轴网”和“弧线轴网”,这里以“直线轴网”为例,点击“直线轴网”。
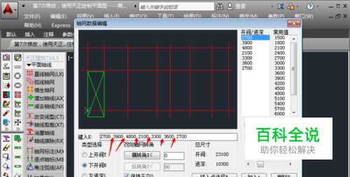
- 03
启动了直线轴网命令,自动进入“下开间”命令,所谓下开间,就是这里的水平方向两个房间之间的墙中心线之间的距离。这里根据绘图的CAD图,知道了各个开间之间的距离,然后在上面输入,数字之间用空格隔开(这个操作比较方便)如这里的:2700 3900 4800 2100 3300 3600 2700
- 04
然后点击“上开间”,默认调入“下开间”的开间尺寸,根据需要对开间尺寸进行添加或者删减,符合上开间的开间尺寸和数量,如这里。
- 05
然后点击“左进深”,所谓左进深就是左边中房间之间的中心墙线之间的距离,如这里的6600。左方上下主要有两个房间,因此我输入主要的进深6600和3700
- 06
然后点击“右进深”,默认调出左进深的尺寸,如果你的右进深和左进深尺寸是一样的就默认了,不一样就进行修改即可。然后点击确认。
- 07
回到绘图界面,要求指定位置,这里我随便指定了一个位置,然后点击鼠标确定。
- 08
这样,轴网就绘制完毕。其实绘制很简单,主要是一些概念性的东西需要知道。轴线是假想的并不存在的线,只是为了定位的需要。
赞 (0)
