EPLAN中的导线设置不同的颜色

EPLAN是一款专业的电气制图软件,其自动连线功能极大的方便了绘图,但是自动连接的导线颜色都是来源于层,基本上是红色,以下将介绍如何改变导线的颜色

操作方法

  • 01

    以将要改变颜色的导线上放置“电位定义点”

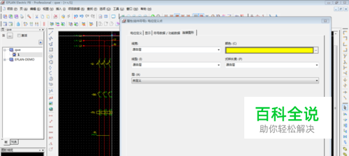
  • 02

    双击插入的“电位定义点”,修改颜色为想要的颜色

  • 03

    在菜单栏中点击“项目数据”——“连接”——“更新”,则颜色已修改

(0)

相关推荐

  • win10中怎么自定义设置任务栏颜色

    今天小编分享的是win10中怎么自定义设置任务栏颜色.具体如下:1. 点击左下角的[开始]打开,点击箭头指示的"设置"2. 点击箭头指示的"个性化"3. 点击左 ...

  • 电脑中无法设置窗口的颜色如何解决

    电脑中无法设置窗口的颜色如何解决 1.按win+R打开运行,输入gpedit.msc并回车; 2.在组策略编辑器中依次展开"用户配置->管理模板->控制面板->个性化&qu ...

  • Word2016中怎么设置字体的颜色

    Word2016中设置字体的颜色的方法 1.鼠标左键双击计算机桌面Word2016程序图标,将其打开运行.并点击"打开其他文档"选项.打开需要编辑的Word文档.如图所示; 2.在 ...

  • 在excel2003中如何将字体设置成别的颜色?

    excel 2003是一款功能强大的办公软件,该软件在表格制作和数据处理方面是非常优秀的,我们在制作表格是为了凸显某些文字,需要将这些字体设置成别的颜色,来区别于其他的文字,这是如何设置的呢,一起来看 ...

  • Excel表格中怎么设置字体大小颜色?

    对于初学办公软件的人来说,设置字体的种类.大小.粗体.斜体等就是最基础的了.那我们一起来看看怎样设置字体的这些基本方法. 1.打开一个Excel电子表格,制作表格,输入相关内容. 2.选中需要设置的单 ...

  • word2010中设置前景背景颜色的方法

    word2010是一个文字处理器应用程序,它是我们办公.学习中不可多得的好帮手.不少小伙伴还不太熟悉有关的操作技巧,因此常常存在困惑.比如:很多用户不知道怎么设置前景背景颜色,小编今天就来问您解答这个 ...

  • 怎么在Excel中设置按填充颜色进行单元格求和

    Excel是我们常用的一款数据处理软件,深受大家的欢迎,是我们学习办公的助手,有的朋友想知道怎么在Excel中设置按填充颜色进行单元格求和,小编为大家解答这个问题.具体如下:1. 首先,请大家在自己的 ...

  • 如何在Excel中间隔两行设置颜色?

    在使用Excel表格的时候,我们有的时候需要设置隔两行设定颜色来方便我们区分,下面来一起去看看吧!具体如下:1. 首先我们需要点击打开我们需要设置的Excel表格,2. 接着,我们需要选中需要设置颜色 ...

  • 怎么将Excel表格中插入图表的背景色设置为多种颜色

    我们在用excel制作图表时,如果想要给图表的背景色设置为多种颜色,更加直观的看数据,该如何操作呢?今天就跟大家介绍一下怎么将Excel表格中插入图表的的背景色设置为多种颜色的具体操作步骤.1. 如图 ...