cad怎么打印局部图纸

CAD是一种专业的制图软件,今天小编就为大家介绍一下cad怎么打印局部图纸。

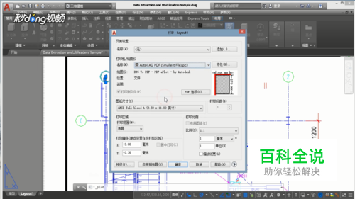
操作方法

  • 01

    首先打开图纸,在CAD图纸中打开“文件”。

  • 02

    然后打开打印设置,设置打印机和打印的图纸尺寸。

  • 03

    在打印区域中选择“窗口”,选择打印区域再选择“居中打印”。

  • 04

    设置图纸的纵向或横向打印,设置打印比例。

  • 05

    最后点击“应用到布局”,保存后点击“确定”即可打印。

(0)

相关推荐

  • cad怎么设置打印局部图纸 autocad自定义打印图纸区域的方法

    AutoCAD是一款家喻户晓的设计软件,主要用于二维绘图.详细绘制.设计文档和基本三维设计等,cad怎么设置打印局部图纸?cad能方便的帮助用户进行打印图纸,使用简单,不少用户最关心的就是自己怎么才能 ...

  • cad怎么打印a3图纸

    CAD制图软件一般打印我们都打印的A4纸,要是打A3张大小该怎么打呢? 操作方法 01 打开CAD制图软件,现在要打印这个图 02 文件→打印或者CTRL+P打印 03 选择一个可以打印A3纸的打印机 ...

  • CAD如何打印出清晰的.黑白的图纸

      CAD如何打印出清晰的.黑白的图纸 CAD打印设置 CAD打印出清晰的.黑白的图纸的方法: 打开要打印的CAD文件,按"ctrl+P"快捷键,打开"打印"对 ...

  • cad怎么打印图纸 浩辰cad图纸批量打印教程

    浩辰CAD是一款非常专业的3D制图工具,是用户设计.分享图纸的更好选择!那么浩辰CAD怎么打印呢?以下就是小编为大家介绍的相关技巧. 1.普通打印 在大多数情况下,我们可以采取普通打印的方式.在浩辰C ...

  • 迅捷CAD编辑器打印图纸线条不显示怎么办?

    很多用户在使用迅捷CAD编辑器画好图纸后打印,发现打印机出来的图纸线条全都不见了,这很是烦恼,不要急,下面就说一下图纸打印后线条消失的情况该怎么解决.当然前提是你要确认打印机是正常的. 原因一:打印线 ...

  • cad打印选中图纸预览是空白(cad图形打印预览空白)

    平时使用cad的朋友有没有遇到过,当你打开图纸准备打印的时候,打印预览为空白的.如果遇到了,不防试一试以下方法.问题:打印范围为窗口,居中打印,打印比例为布满图纸点击预览后,预览效果为空白解决方法:1 ...

  • CAD黑白打印图纸时显示模糊什么办

    有时候打印图纸,发现用黑墨打印出来的时候,显得很不模糊,可在打印样式表里设置. 操作方法 01 用CAD打开需要打印的图纸,如图 02 CTRL+P调出打印 03 点击更多选项,点击编辑打印样式表,调 ...

  • CAD中怎么打印彩色图纸?

    现在CAD打印在图纸上面,很方便的.不过打印彩色和黑白多少还是有些区别的,下面我就来给大家介绍一下如何打印彩色的CAD图纸,希望能帮到大家~ 操作方法 01 我先给大家看一下,我这边是有很多图纸需要打 ...

  • CAD如何打印出清晰的黑白图纸

    CAD图纸打印出来总是模糊的怎么办?这篇指南就教大家CAD如何打印出清晰的黑白图纸. 操作方法 01 双击电脑桌面中CAD软件图标.打开以后如图所示. 02 打开电脑中的CAD图纸文件,打开以后,图纸 ...