如何画机械制图之起重钩

电脑画图方便你我生活,辅助学习和工作,本次小编机械制图之起重钩画法进行介绍。

操作方法

  • 01

    先画中心线,再用细线画定位线,再加粗实线。

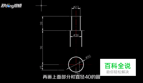
  • 02

    再画上,上面部分和直径40的圆。

  • 03

    画R48和R60的圆弧,手绘R60时先找到圆心。

  • 04

    再根据一条线和一个圆外切画出R40,再画出R23和R40。

  • 05

    再画R4,根据圆弧与R23外切,与R40内切,找到圆心。

  • 06

    再画倒角和倒圆角,去掉多余的辅助线。

(0)

相关推荐

  • AE CS selective color correct调色教程

    这个教程和的朋友们用AE CS selective color correct滤镜调色,教程比较简单,希望学习影视后期的朋友喜欢这篇教程。首先下载AE CS selective color corre ...

  • 机械制图中按规定螺纹连接怎么画

    以剖视图表示螺纹连接时,其旋合部分应按外螺纹的画法绘制,其余部分仍按各自的画法表示. 今天笔者就和大家分享一下按规定如何绘制螺纹连接图,还是以M18x1.5为例. 操作方法 01 打开CAD,新建一个 ...

  • PPT中如何做出画对钩和错号的动画效果

    当我们使用ppt播放选择题的时候,经常会有判断正确和错误的时候,我们需要在对的选项上打对号,错的打错号,那么在做ppt的时候我们应该怎么做呢?下面小编和大家分享一些我的做法. 操作方法 01 打开pp ...

  • 在word中画直线和角的图文教程

     Word制图制表避免不了要用到绘图工具,Word绘图工具非常强大,我们可以用它画出各式各样的图案和线条,还可以给画出的图形涂上颜色。毕竟这个功能不是经常用到,所以知道的人也比较少,这里Word联盟还 ...

  • 在Word中画横线的四种方法

    (1)如果横线不长,可以采用设置下划线的方法:先按一下下划线工具“U”,再根据需要输入几个字符,按一些空格。例如:“姓名”、“学校”后边跟的空白字符下划线。例:姓名 (2)如果需要在文字上方或文字中间 ...

  • excel表格中如何画斜线

    如何在Excel中画单斜线 ①首先,将首部单元格长和宽调整大一点(如下图); ②单击"开始"-->格式-->设置单元格格式,你也可以直接选中首部单元格,然后右键,在弹出 ...

  • Excel怎么画斜线

    在Excel中画单斜线的方法 ①首先,将首部单元格长和宽调整大一点(如下图); ②单击"开始"-->格式-->设置单元格格式,你也可以直接选中首部单元格,然后右键,在弹 ...

  • Excel中如何画斜线 在Excel中画双斜线的步骤

    在Excel中画单斜线的方法 ①首先,将首部单元格长和宽调整大一点(如下图); ②单击"开始"-->格式-->设置单元格格式,你也可以直接选中首部单元格,然后右键,在弹 ...

  • 怎么在excel插入打钩方框

    在excel2013插入打钩方框的方法一:插入特殊符号 1.这种方法在Word中有所介绍,步骤一致,单击菜单栏--"插入"--"符号". 2.在符号选项界面中, ...