CAD添加标注公差及修改小数点位数和精度
CAD怎么在尺寸标注上添加公差?怎么调节标注尺寸的精度?下面介绍CAD添加标注公差及修改小数点位数和精度的方法。
操作方法
- 01
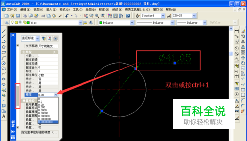
作为实例创建一个非整直径的圆(图示直径41.0473....),标注,发现只显示两位小数
- 02
双击标注尺寸或者选中按ctrl+1,拖动滚动条,选择需要精度
- 03
点击关闭或者按ctrl+1即可
- 04
下面介绍添加标注公差,双击标注尺寸或者选中按ctrl+1,拖动滚动条,选择公差中的显示公差——对称
- 05
输入公差
- 06
再次选择对称
- 07
选择公差的精度
- 08
点击关闭或者按ctrl+1即可
赞 (0)
