CAD如何标注正负公差
想要在编辑的图纸上标注正负公差,如何标注呢?下面讲解使用CAD标注正负公差的具体方法
操作方法
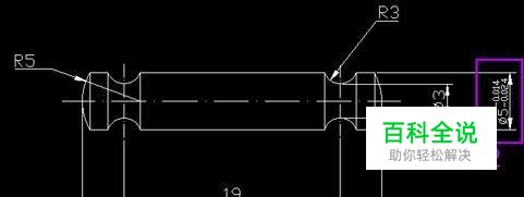
- 01打开一张图纸,如图所示两个框出的地方,正好是两种不同公差的标注方式,1为对称公差,2为极限公差 
- 02点击工具栏上的“标注样式按钮”(如果没找到这个按钮,可以在工具栏空白处点击右键“Autocad”→“样式”打上勾就有这个样式工具条了) 
- 03弹出“标注样式管理器”对话框,选择当前使用的样式,然后点击“修改” 
- 04弹出入“样式修改器”对话框,点击“公差”,然后设置标注方面关于公差的内容 
- 05设置好以后,点击“确定”,返回上一界面,点击右侧的“置为当前”然后点击“关闭”关闭设置界面就可以了。但是这样设置以后,你的所有的标注都会出现设置过的那些公差,但是你图形中的尺寸不会都是带有公差的,所以这个方法还不是很实用 
- 06设置好以后,点击“确定”,返回上一界面 
- 07点击右侧的“置为当前”然后点击“关闭”关闭设置界面就可以了 但是这样设置以后,你的所有的标注都会出现设置过的那些公差,但是你图形中的尺寸不会都是带有公差的,所以这个方法还不是很实用 
- 08比较方便的标注公差:鼠标选中你要标注公差的标注,然后键盘按“ED空格”(英文输入法状态下),然后会出现一个“文字格式”窗口,如图所示输入想要标注的上下公差数值,然后用鼠标选中上下公差数值,然后点击窗口上的“b/a”堆叠的按钮 
- 09刚才一行输入的上下公差数值,变成了上下两行,然后点击窗口的“确定”按键,这个极限公差就算是输入完毕了 
- 10用类似的方法再修改一个R5那个数值,这里增加一个对称公差。先选中R5,然后键盘按“ED空格”(英文输入法状态下),弹出文字格式窗口,在R5后面输入“%%p0.05”,“%%p”会一下子变成“±”这样刚才输入的“0.05”就变成了所需要的对称公差,然后点击窗口的“确定”就OK了。 
- 11两种标注效果效果如图所示 

