UG技巧2D工程图3D图面
3D转2D我相信大家都会,可是怎么能把CAD的2D图面转3D建模呢?我相信现在的设计师大部还不会吧,以前没人问,是因大家都应为是不能的,现在我给大家介绍一下,看好的记的加分哦。
操作方法
- 01
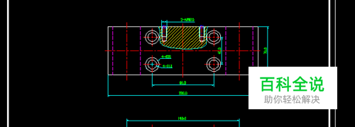
选择好你要转为3D图面的2D图面,选择一个表达最全视图(正常都主视图),主要是看怎么流线能完成3D操作。就以以下二张图为例吧(一张图我怕有的人很难领悟到真蒂).
- 02
分析:第一张图面是一个厚度为10MM的边侧板,这种图面有二个视图就能表达的很清,3D一步拉伸成型,因为孔太多,3D画出来也很吃力,选择二2D图投影或(已有2D图面)。 操作:选择主视图,其它视图,图框全部删除。如以下图面。
- 03
导入3D:打开UG找到刚刚CAD画好的2D图面,这里要选择DWG格式哦,要不是看不到的,如以下图片。直接点打开哦不需要从别的地方导入。 注意:第一,CAD保存为2004DWG格式。第二,存放路径不能有汉字与字符。
- 04
打开以后可能看不到图型,我们先点下时候窗口就看到,如以下图片,导入的只是和2D一样的线。
- 05
进入建模界面,点住右建选择着色,这时候全选线进行拉伸,(有时候线有问题是拉伸不了,要一个个拉伸找出问题)。如以下图片,拉伸OK了。
- 06
接打来给大家讲下第二张图片,与第一张不同是的,多个面上有结构,怎样取2D图面。如图片一,取好的图片如图二。
- 07
进入建模界面,点住右建选择着色,这时候全选线进行拉伸,旋转。 图片1:选择周边线拉伸(注意:这里一定要用对称拉伸,只是对称拉伸才能在坐标中心)拉伸完成先把它隐藏。 图片2和3:选择边圆柱线旋转线旋转。完成旋转同样先把它隐藏. 图片4和5:大小圆拉伸,大圆深29,过了中心,小圆为去材料选择对称拉伸比图1的大方要高。
- 08
现在求差:先把隐藏的结构都取销隐藏,在进行求差,这个就不多说了。求差完成如发下图片。图片1:小圆求差 图片2:大圆求差 图片3:大圆柱求差 图片4:小圆柱求差 ,求差OK.
- 09
这一步叫修图:大圆高度为29,中心到一面是22.5,还差6.5.我们用偏移命令,如以下图片。
- 10
接下我们用镜像命令做出另一半产品如图片1,镜像完求合就OK。命令操作就不多说,大家都的。这样就画好了,如图2.
