形位公差标注实例
通过的练习,让读者掌握形位公差各个特征值的设置方法,并讲解了不同形位公差的标注方法,以及形位公差标注引线的位置确定,然后详细讲解了基准符号的绘制、定义图块、插入图块的方法。
操作方法
- 01正常启动autocad软年,选择“文件|打开”菜单命令,将“形位公差标注-A.dwg”文件打开。 
- 02在图层工具栏的图层控制下拉列表框中,将“标注层”图层设置为当前图层。 
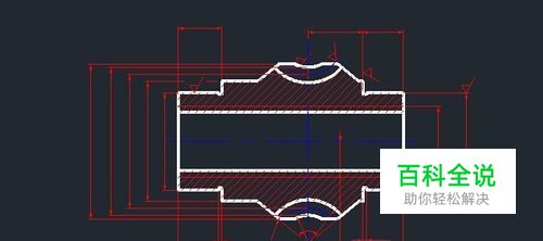
- 03单击“标注”工具栏中的“公差”按钮,将弹出“形位公差”对话框,设置符号为“圆跳动”,在“公差1”文本框中输入公差值为0.08,在“基准1”文本框中输入基准符号为“A-B”,再单击“确定”按钮,然后在图形要标注公差值附近位置单击,即可插入公差标注。 
- 04要使形位公差标注对象准确地定位于某一位置,可以使用直线和引线标注命令来指定形位公差的标注位置。 
- 05按照相同的方法,对图形1、2处进行“圆跳动”形位公差标注,在3处进行“同轴度”形位公差标注。 
- 06执行直线、圆、文字命令,在视图的空白位置绘制一基准符号,其上侧水平多段线宽为0.2mm,长度为7mm,垂直线段长度为5mm,圆直径为7mm. 
- 07选择“绘图|块|定义属性”菜单命令,弹出“定义属性”对话框,设置相应的属性,并设置文字对正方式、文字样式及文字高度,再单击确定按钮,随后捕捉圆心点即可。 
- 08这时将绘制的符号及定义的属性对象定义为图块对象,执行“块定义”命令(B),将其定义为“JZH”内部图块对象。 
- 09执行“插入块”命令(I),将上一步所定义的属性图块“JZH”插入到图形中的基准位置,并分别输入属性值为A、B。该图形的形位公差已经标注完成。 
 赞 (0)
                        
