把机械零件平面图转化为三维实体模型
如何把已经绘制完成的平面机械零件转换为实体呢?其实很简单,利用绘制实体的三种方式,就可以实现了,本例适合选择REV命令来进行转换。下面,我来分享一下我的。
操作方法
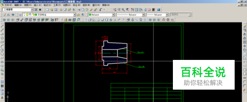
- 01
如图为绘制完成的机械零件图,我们需要做一下处理。
- 02
把不必要的部分给隐藏掉,该零件为回转体,那么我们需要保留回转轴线,以供定义回转中心。
- 03
首先我们创建一面域,把回转的线条转化为封闭平面。
- 04
切换在真实视图,我们可以看见这个面域。
- 05
把面域使用REV命令进行回转360度,我们就形成了如图实体。
- 06
下图为动态观察时的情形,我们可以发现,实体形成了。
- 07
我们切换视口为4个,分别为主视、俯视、左视和东南轴测图,用以更为方便的观察和修改实体。
赞 (0)
