标准的卫生间CAD立面图里要有哪些标注
CAD立面图是为了展示某个空间的某个面的装饰效果,显示顶面、墙面、底面材料和家具的布置。
操作方法
- 01
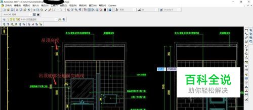
标注垂直立面的外部总高度,包括吊顶高度、吊顶底部至地面完成面高度、以及地面完成面高度,属于外尺寸。
- 02
标注水平面上家具与墙体的距离、家具与家具的距离、墙体与墙体的距离、水平轴线总长度,属于外尺寸。
- 03
标注家具的品类及甲/乙方订购,开关面部等。
- 04
标注墙面材料、材料规格。
- 05
标注吊顶材料,及原始结构楼板和地面完成面。
- 06
家具、开关、插座等的定位:其与墙面的垂直相对尺寸,开关和插座则是标明水平、垂直两个方向的相对尺寸,属于内尺寸。
- 07
标注立面的门窗样式,及标注甲/乙方订购。
赞 (0)
